Italiano
229.000 €

Villa unifamiliare su due livelli con Giardino e Box privato

Villa in vendita • Motta Visconti - Via Don Minzoni, 57
L’agenzia immobiliare Lecasedimotta propone in VENDITA ed in ESCLUSIVA una villa singola a Motta Visconti, caratterizzata da ampi spazi con 3 camere da letto e doppi servizi, indipendenza e un piacevole giardino privato che circonda l’abitazione.

La villa si sviluppa su due livelli e accoglie gli ospiti attraverso un ingresso pedonale indipendente che conduce al giardino di proprietà, ideale per momenti di relax o per chi ama vivere gli spazi esterni.
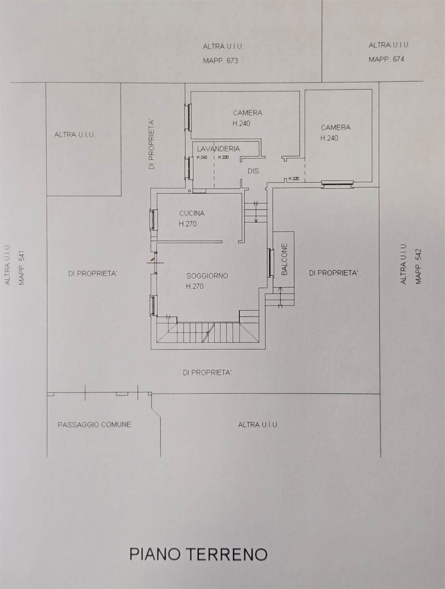
Al piano terreno troviamo un luminoso soggiorno con doppia esposizione, una cucina abitabile con accesso al giardino, un disimpegno, un bagno con box doccia, una camera matrimoniale e una seconda camera, entrambe con accesso diretto al giardino.

Al piano superiore, collegato da una comoda scala interna, si sviluppa una spaziosa camera matrimoniale e un bagno con balcone, perfetta come suite riservata o zona ospiti.

A completare la proprietà un box singolo interno all’area privata, porta blindata, riscaldamento autonomo e ottima esposizione che garantisce luminosità in ogni ambiente.
Una soluzione ideale per chi desidera vivere in tranquillità, in una villa indipendente con giardino, a pochi passi dai principali servizi e dal centro del paese.

Prezzo richiesto: 229.000€
Nessuna spesa condominiale.

Possibilità di Consulenza gratuita con nostro referente mutui,
Le presenti informazioni non costituiscono elemento contrattuale.
Caratteristiche principali
Codice
VillaDonMinzoni2
Città
Motta Visconti
Categoria
Villa
Prezzo
229.000 €
Locali
4
Camere
3
Bagni
2
Mq
135
Box
1
Mq Box
15
Posti auto
2
Mq Giardino
120
Balconi
1
Mq Balcone
5
Classe energetica
E
171,12 kWh/m²a
Stato Immobile
Buono
Grado
Medio
Posizione
Periferia
Panorama
Vista Giardino
Orientamento
Nord Ovest Sud Est
Lati Liberi
4
Giardino
Privato
Arredi
Non Arredato
Tipo Soggiorno
Soggiorno
Tipo Cucina
Abitabile
Riscaldamento
Autonomo
Tipo Riscaldam.
Caldaia
Tipo Impianto
Radiatori
Fonte Energetica
Metano
Acqua Calda
Autonoma
Raffrescamento
Predisposizione
Infissi
Legno Doppio Vetro
Serramenti
Buono
Persiana
Persiana Legno
Pavim. Giorno
Ceramica
Pavim. Notte
Ceramica
Pavim. Cucina
Ceramica
Pavim. Bagno
Ceramica

Accessori: Doppi Vetri, Lavanderia, Passaggio Automobilistico, Passaggio Pedonale, Porta Blindata, Ripostiglio, Tavolini Esterni

Mappa
Via Don Minzoni 57, Motta Visconti (MI)
Condividi su
Cookie preference