Italiano
229.000 €

Trilocale Classe A+ Doppi servizi terrazzo cantina Box doppio

Appartamento in vendita • Motta Visconti - Via Mulini, 13
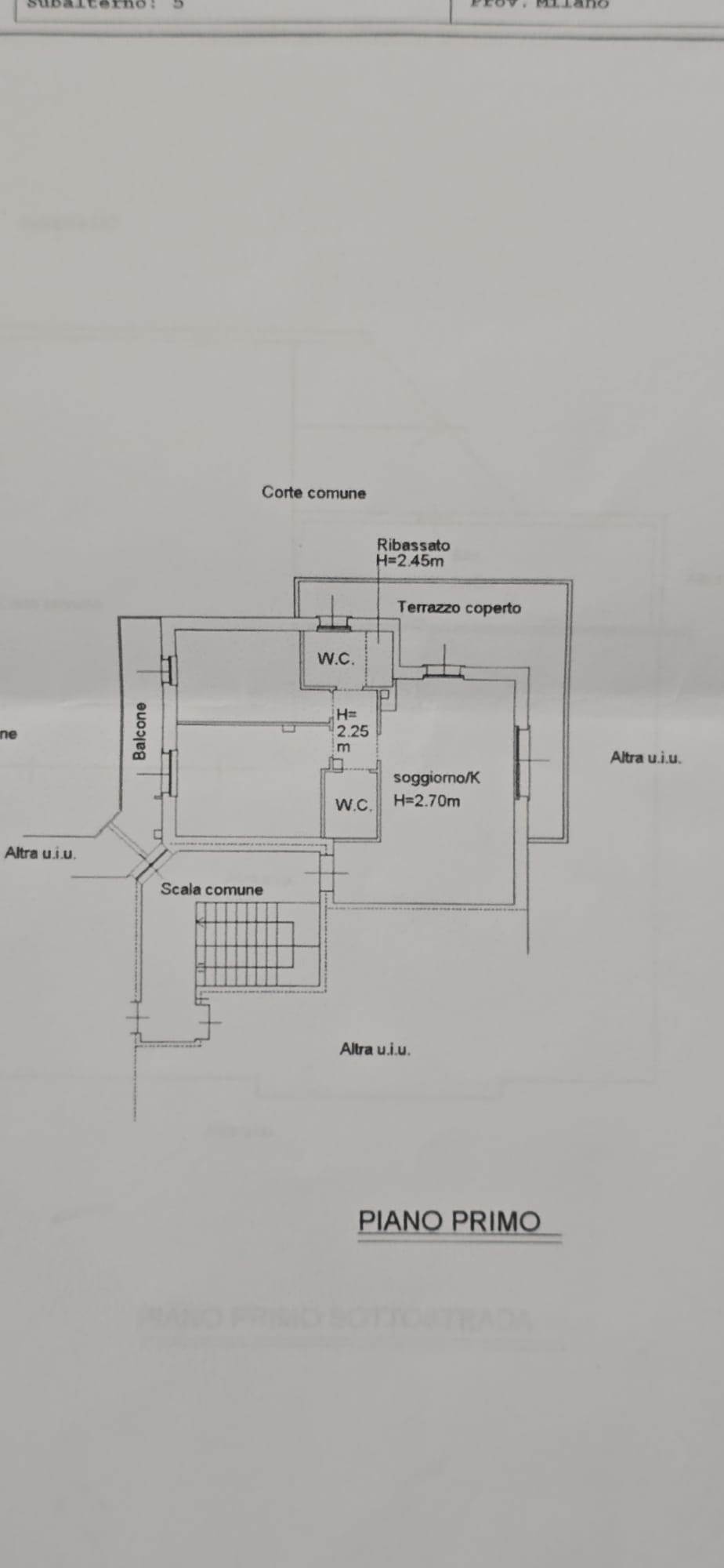
L'agenzia Immobiliare LeCasediMotta propone in vendita ed in esclusiva un trilocale di recente costruzione, edificato nel 2022, situato al primo ed ultimo piano in una palazzina moderna di Motta Visconti, esattamente in Via Mulini, compreso di cantina e Box doppio di 31mq.

L’abitazione è stata realizzata secondo le più innovative tecnologie costruttive, con particolare attenzione all’efficienza energetica e al comfort abitativo, garantendo così spese di gestione contenute e un elevato standard qualitativo.

L’ingresso avviene tramite porta blindata e si apre su un luminoso soggiorno con angolo cottura, ambiente accogliente e funzionale, dal quale si accede direttamente all’ampio balcone che si collega a un terrazzo coperto con vista aperta, ideale per momenti di relax e convivialità.

La zona notte è ben distribuita e comprende una camera matrimoniale con balcone, un bagno finestrato con box doccia, una seconda cameretta anch’essa con uscita diretta sul balcone e un secondo bagno di servizio, completo di lavanderia e asciugatrice.

L’appartamento si presenta in perfette condizioni, pronto da abitare, rifinito con materiali moderni e di qualità. Completano la proprietà una cantina e un box auto privato di 31mq, elementi fondamentali per praticità e comfort quotidiano.

La posizione, in una zona residenziale tranquilla di Motta Visconti, consente di godere della giusta riservatezza senza rinunciare alla vicinanza dei principali servizi.

Questa soluzione rappresenta la scelta ideale per chi desidera un appartamento recente, ben distribuito, dotato di ampi spazi esterni e pronto da abitare, con aria condizionata, porta blindata, tapparelle elettriche, videocitofono, zanzariere e un terrazzo abitabile verandato.

Prezzo richiesto: 229.000€

Possibilità di Consulenza gratuita con nostro referente mutui.
Le presenti informazioni non costituiscono elemento contrattuale.
Caratteristiche principali
Codice
TriloMulini
Città
Motta Visconti
Categoria
Appartamento
Prezzo
229.000 €
Locali
3
Camere
2
Bagni
2
Mq
90
Box
2
Mq Box
37
Balconi
2
Mq Balcone
10
Terrazzi
1
mq Terrazzo
15
Classe energetica
A1
34,56 kWh/m²a
Stato Immobile
Ottimo
Grado
Signorile
Posizione
Centro
Panorama
Vista Aperta
Lati Liberi
3
Giardino
No
Arredi
Possibilità
Tipo Soggiorno
Soggiorno
Tipo Cucina
Angolo Cottura
Riscaldamento
Autonomo
Tipo Riscaldam.
Caldaia a Condensazione
Tipo Impianto
Pavimento
Fonte Energetica
Metano
Acqua Calda
Autonoma
Raffrescamento
Split
Infissi
Alluminio Doppio Vetro
Serramenti
Nuovo
Persiana
Persiana PVC
Pavim. Giorno
Ceramica
Pavim. Notte
Ceramica
Pavim. Cucina
Ceramica
Pavim. Bagno
Ceramica
Tipo Saracinesca
Elettrica
Accesso Disabili
No
Isolamento
Presente
Isolamento termico
Cappotto esterno

Accessori: Aria Condizionata, Armadio a Muro, Cancello Elettrico, Doppi Vetri, Lavanderia, Parco Condominiale, Passaggio Automobilistico, Passaggio Pedonale, Porta Blindata, Ripostiglio, Tapparelle Elettriche, Tavolini Esterni, Tripli Vetri, Veranda, Video Citofono, Zanzariere

Mappa
Via Mulini 13, Motta Visconti (MI)
Condividi su
Cookie preference